HAK HAS Neunkirchen
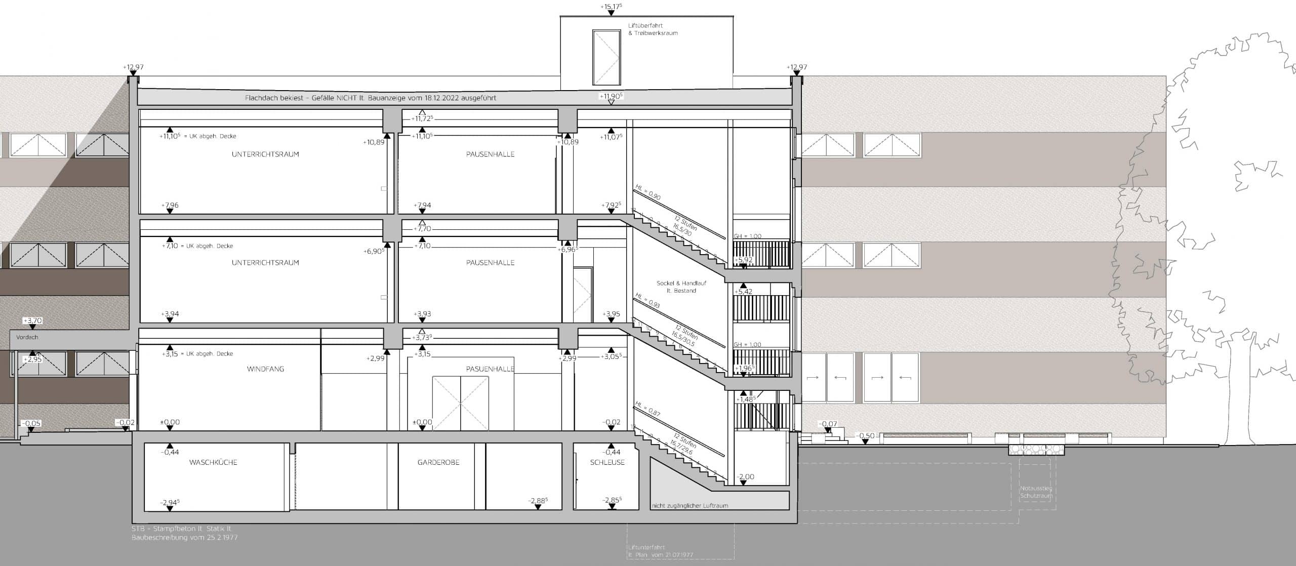
Die Bestandsaufnahme der Handelsakademie und Handelsschule Neunkirchen erfolgte mittels unseres BLK 360 Laserscanner. Das Gebäude misst rund 8.000 m2. Diese präzise Erfassung bildet die Grundlage für zukünftige Planungen und ermöglicht eine exakte Dokumentation des gesamten Gebäudebestands.
